横浜市泉区上飯田町 新築戸建
新築戸建 いずみ野駅 4,480万円値下げ
- 建物面積
- 97.40㎡
- 土地面積
- 111.43㎡
- 所在地
- 横浜市泉区上飯田町
- アクセス
- 相鉄いずみ野線いずみ野駅より 徒歩18分
担当者のつぶやき
「いずみ野」駅徒歩18分。3LDK新築分譲住宅です。発砲式ウレタン吹付の断熱施工!公園やコンビニが近隣にあり便利で生活しやすい環境。屋外200Vコンセント設置。カースペース2台駐車可能です。(車種による)
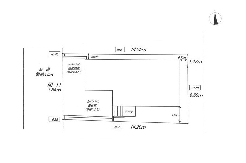
間取り/区画図


新築戸建 いずみ野駅 4,480万円値下げ
「いずみ野」駅徒歩18分。3LDK新築分譲住宅です。発砲式ウレタン吹付の断熱施工!公園やコンビニが近隣にあり便利で生活しやすい環境。屋外200Vコンセント設置。カースペース2台駐車可能です。(車種による)

| 物件価格 | 頭金 | 毎月の返済額 |
|---|---|---|
| 4,480万円 | 万円 | 円/月 |
※返済年数35年、金利0.196% (変動金利) で算出しています。
※借入については金融機関の所定の審査があり、審査の結果によりご利用できない場合があります。
※金利は優遇金利適用の場合です。
※購入の際には別途諸費用が必要となります。 詳しくはスタッフまでお問い合わせ下さい。
| 種別 | 新築戸建 | 価格 | 4,480万円値下げ |
|---|---|---|---|
| 所在地 | 神奈川県横浜市泉区上飯田町 | アクセス | 相鉄いずみ野線いずみ野駅より 徒歩18分 |
| 築年月 | 新築/中古 | 新築 | |
| 建物面積 | 97.40㎡ | 計測方式 | 壁芯 |
| バルコニー | 向き | ||
| 建物構造 | 木造 | 建物階数 | 地上2階 |
| 間取内容 | 1階 LDK23.5畳 / 2階 洋室8.0畳 / 2階 洋室6.1畳 / 2階 洋室5.2畳 | ||
| 駐車場 | 有 | ||
| 引渡/入居時期 | 2025年12月下旬 | 現況 | 未完成 |
| 地目 | 用途地域 | 第二種中高層住居専用 | |
| 都市計画 | 市街化区域 | 地勢 | |
| 土地面積 | 111.43㎡ | 土地面積計測方式 | 公簿 |
| 建ぺい率 | 60% | 容積率 | 150% |
| 土地権利 | 所有権 | 接道状況 | 一方 |
| 接道方向1 | 西 | 接道間口1 | 7.64m |
| 接道種別1 | 公道 | 接道幅員1 | 4.5m |
| 接道方向2 | 接道間口2 | ||
| 接道種別2 | 接道幅員2 | ||
| 小学校 | 上飯田小学校 | 中学校 | 上飯田中学校 |
| 設備・条件 | システムキッチン 食器洗い乾燥機 浴室乾燥機 温水洗浄便座 床下収納 W.INクローゼット TVドアホン 都市ガス 公営水道 排水下水 駐車場有 バルコニー 【建築確認番号:第25KAK建確01199号】 | ||
| 取引態様 | 仲介 | お問い合せ番号 | S3785 |