横浜市旭区金が谷1丁目 新築戸建
新築戸建
三ツ境駅
4,780万円値下げ
- 建物面積
- 101.56㎡
- 土地面積
- 133.57㎡
- 所在地
- 横浜市旭区金が谷1丁目
- アクセス
- 相鉄本線三ツ境駅より 徒歩15分
相鉄本線三ツ境駅よりバス7分 停歩3分
担当者のつぶやき
「三ツ境」駅徒歩15分(バス利用も可能)。4LDK新築分譲住宅全3棟誕生!学区の小学校まで約400mと近く通学も安心の立地。シューズクローク・TV付モニター付きインターフォン・食洗機・浴室乾燥機付きユニットバス・三面鏡洗面化粧台・ウォシュレット機能付きトイレなど設備も魅力。カースペース2台駐車可能です。(車種による)
【土地面積】103.56㎡~133.57㎡
【建物面積】101.56㎡~112.81㎡
【販売価格】4,780万円~5,180万円
C号棟成約済
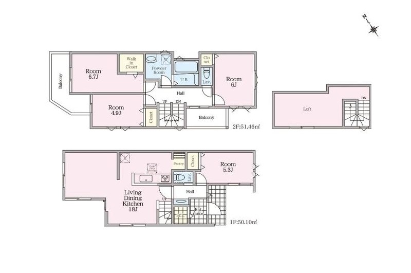
間取り/区画図
配置図
この物件のお問い合わせ
ローンシミュレーション
※返済年数35年、金利0.196% (変動金利) で算出しています。
※借入については金融機関の所定の審査があり、審査の結果によりご利用できない場合があります。
※金利は優遇金利適用の場合です。
※購入の際には別途諸費用が必要となります。 詳しくはスタッフまでお問い合わせ下さい。
物件詳細情報
| 種別 |
新築戸建 |
価格 |
4,780万円値下げ |
| 所在地 |
神奈川県横浜市旭区金が谷1丁目 |
アクセス |
相鉄本線三ツ境駅より 徒歩15分 相鉄本線三ツ境駅よりバス7分 停歩3分 |
| 築年月 |
2025年6月 |
新築/中古 |
新築 |
| 建物面積 |
101.56㎡ |
計測方式 |
壁芯 |
| バルコニー |
|
向き |
|
| 建物構造 |
木造 |
建物階数 |
地上2階 |
| 間取内容 |
1階 LDK18.0畳 / 1階 洋室5.3畳 / 2階 洋室6.7畳 / 2階 洋室6.0畳 / 2階 洋室4.9畳 |
| 駐車場 |
有 |
| 引渡/入居時期 |
2025年06月中旬 |
現況 |
完成済 |
| 地目 |
宅地 |
用途地域 |
第一種低層住居専用 |
| 都市計画 |
市街化区域 |
地勢 |
|
| 土地面積 |
133.57㎡ |
土地面積計測方式 |
実測 |
| 建ぺい率 |
50% |
容積率 |
100% |
| 土地権利 |
所有権 |
接道状況 |
一方 |
| 接道方向1 |
南東 |
接道間口1 |
2.6m |
| 接道種別1 |
公道 |
接道幅員1 |
5.5m |
| 接道方向2 |
|
接道間口2 |
|
| 接道種別2 |
|
接道幅員2 |
|
| 小学校 |
笹野台小学校
|
中学校 |
希望が丘中学校
|
| 設備・条件 |
システムキッチン 食器洗い乾燥機 浴室乾燥機 温水洗浄便座 TVドアホン 都市ガス 公営水道 排水下水 駐車場有 バルコニー 【建築確認番号:第24KAK建確02043号他】 |
| 取引態様 |
仲介 |
お問い合せ番号 |
S3596 |
この物件のお問い合わせ
この物件を見た人は
他にこんな物件を見ています