横浜市泉区上飯田町 中古戸建
中古戸建
高座渋谷駅
2,989万円値下げ
- 建物面積
- 80.58㎡
- 土地面積
- 101.22㎡
- 所在地
- 横浜市泉区上飯田町
- アクセス
- 小田急江ノ島線高座渋谷駅より 徒歩20分
相鉄いずみ野線いずみ野駅よりバス11分 停歩1分
担当者のつぶやき
小田急江ノ島線「高座渋谷」駅徒歩20分。平成17年築の3LDK中古戸建住宅です。固定階段で上がれるロフト付き!リフォーム完了済みですぐに入居できます。
【リフォーム内容】2025年6月
・外壁、屋根、雨樋塗装 ・バルコニー防水 ・全室クロス、CF張替 ・ガスコンロ ・レンジフード ・1階トイレ ・照明器具 ・分電盤 ・給湯器 など
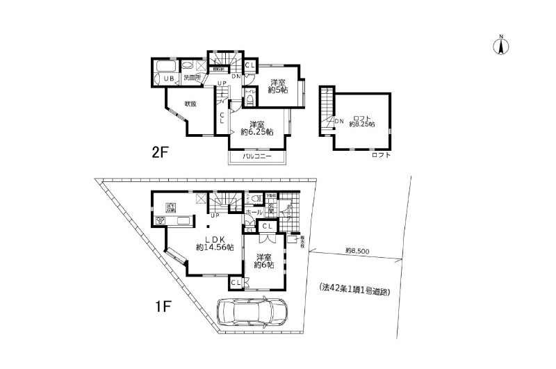
間取り/区画図
この物件のお問い合わせ
ローンシミュレーション
※返済年数35年、金利0.196% (変動金利) で算出しています。
※借入については金融機関の所定の審査があり、審査の結果によりご利用できない場合があります。
※金利は優遇金利適用の場合です。
※購入の際には別途諸費用が必要となります。 詳しくはスタッフまでお問い合わせ下さい。
物件詳細情報
| 種別 |
中古戸建 |
価格 |
2,989万円値下げ |
| 所在地 |
神奈川県横浜市泉区上飯田町 |
アクセス |
小田急江ノ島線高座渋谷駅より 徒歩20分 相鉄いずみ野線いずみ野駅よりバス11分 停歩1分 |
| 築年月 |
2005年12月 |
新築/中古 |
中古 |
| 建物面積 |
80.58㎡ |
計測方式 |
壁芯 |
| バルコニー |
|
向き |
|
| 建物構造 |
木造 |
建物階数 |
地上2階 |
| 間取内容 |
1階 LDK14.5畳 / 1階 和室6畳 / 2階 洋室6.2畳 / 2階 洋室5畳 |
| 駐車場 |
有 |
| 引渡/入居時期 |
相談 |
現況 |
空家 |
| 地目 |
宅地 |
用途地域 |
無指定 |
| 都市計画 |
市街化調整区域 |
地勢 |
|
| 土地面積 |
101.22㎡ |
土地面積計測方式 |
公簿 |
| 建ぺい率 |
50% |
容積率 |
80% |
| 土地権利 |
所有権 |
接道状況 |
一方 |
| 接道方向1 |
東 |
接道間口1 |
10.13m |
| 接道種別1 |
公道 |
接道幅員1 |
8.5m |
| 接道方向2 |
|
接道間口2 |
|
| 接道種別2 |
|
接道幅員2 |
|
| 小学校 |
飯田北いちょう小学校
|
中学校 |
上飯田中学校
|
| 設備・条件 |
リノベーション ロフト付き プロパンガス 公営水道 排水下水 出窓 フローリング タイル貼り |
| 取引態様 |
仲介 |
お問い合せ番号 |
C2550 |
この物件のお問い合わせ
この物件を見た人は
他にこんな物件を見ています