
| 物件価格 | 頭金 | 毎月の返済額 |
|---|---|---|
| 3,980万円 | 万円 | 円/月 |
※返済年数35年、金利0.196% (変動金利) で算出しています。
※借入については金融機関の所定の審査があり、審査の結果によりご利用できない場合があります。
※金利は優遇金利適用の場合です。
※購入の際には別途諸費用が必要となります。 詳しくはスタッフまでお問い合わせ下さい。
| 種別 | 新築戸建 | 価格 | 3,980万円 |
|---|---|---|---|
| 所在地 | 神奈川県横浜市瀬谷区阿久和西2丁目 | アクセス | 相鉄本線三ツ境駅よりバス6分 停歩5分 |
| 築年月 | 新築/中古 | 新築 | |
| 建物面積 | 74.92㎡ | 計測方式 | 壁芯 |
| バルコニー | 向き | ||
| 建物構造 | 木造 | 建物階数 | 地上2階 |
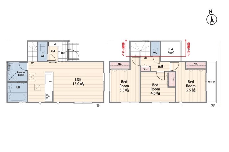
| 間取内容 | 1階 LDK14.75畳 / 2階 洋室6畳 / 2階 洋室5畳 / 2階 S4.59畳 | ||
| 駐車場 | 有 | ||
| 引渡/入居時期 | 2025年08月 | 現況 | 未完成 |
| 地目 | 宅地 | 用途地域 | 第一種低層住居専用 |
| 都市計画 | 市街化区域 | 地勢 | |
| 土地面積 | 94.67㎡ | 土地面積計測方式 | |
| 建ぺい率 | 50% | 容積率 | 80% |
| 土地権利 | 所有権 | 接道状況 | 一方 |
| 接道方向1 | 西 | 接道間口1 | 6.3m |
| 接道種別1 | 公道 | 接道幅員1 | 5.8m |
| 接道方向2 | 接道間口2 | ||
| 接道種別2 | 接道幅員2 | ||
| 小学校 | 原小学校 | 中学校 | 原中学校 |
| 設備・条件 | 食器洗い乾燥機 浴室乾燥機 温水洗浄便座 床下収納 都市ガス 公営水道 排水下水 駐車場有 | ||
| 取引態様 | 仲介 | お問い合せ番号 | S3493 |
新築戸建三ツ境駅
PRICE
DOWN
新築戸建
こちらの物件は会員様限定で詳細情報を
ご覧いただけます。
PRICE
DOWN
新築戸建横浜市瀬谷区
PRICE
DOWN
新築戸建希望ヶ丘駅