横浜市旭区上白根町 新築戸建
新築戸建
鶴ケ峰駅
4,350万円値下げ
- 建物面積
- 100.19㎡
- 土地面積
- 105.15㎡
- 所在地
- 横浜市旭区上白根町
- アクセス
- 相鉄本線鶴ケ峰駅よりバス16分 停歩5分
担当者のつぶやき
「鶴ヶ峰」駅バス利用。閑静な住宅地に建つ4LDK新築分譲住宅です。玄関には可動棚付きSICや床下収納・パントリーや主寝室にはWIC・小屋裏収納など収納豊富な間取り。リビングイン階段で自然と家族とのコミニュケーションがとれます。暮らしを彩る充実した設備・仕様も魅了です。カースペースあります。
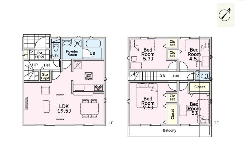
間取り/区画図
この物件のお問い合わせ
ローンシミュレーション
※返済年数35年、金利0.196% (変動金利) で算出しています。
※借入については金融機関の所定の審査があり、審査の結果によりご利用できない場合があります。
※金利は優遇金利適用の場合です。
※購入の際には別途諸費用が必要となります。 詳しくはスタッフまでお問い合わせ下さい。
物件詳細情報
| 種別 |
新築戸建 |
価格 |
4,350万円値下げ |
| 所在地 |
神奈川県横浜市旭区上白根町 |
アクセス |
相鉄本線鶴ケ峰駅よりバス16分 停歩5分 |
| 築年月 |
2025年5月 |
新築/中古 |
新築 |
| 建物面積 |
100.19㎡ |
計測方式 |
壁芯 |
| バルコニー |
|
向き |
|
| 建物構造 |
木造 |
建物階数 |
地上2階 |
| 間取内容 |
1階 LDK18.0畳 / 2階 洋室7.0畳 / 2階 洋室6.6畳 / 2階 洋室5.0畳 / 2階 洋室5.2畳 |
| 駐車場 |
有 |
| 引渡/入居時期 |
2025年05月下旬 |
現況 |
完成済 |
| 地目 |
宅地 |
用途地域 |
第二種中高層住居専用 |
| 都市計画 |
市街化区域 |
地勢 |
|
| 土地面積 |
105.15㎡ |
土地面積計測方式 |
|
| 建ぺい率 |
60% |
容積率 |
150% |
| 土地権利 |
所有権 |
接道状況 |
角地 |
| 接道方向1 |
北東 |
接道間口1 |
|
| 接道種別1 |
|
接道幅員1 |
4.5m |
| 接道方向2 |
北西 |
接道間口2 |
|
| 接道種別2 |
|
接道幅員2 |
4.5m |
| 小学校 |
四季の森小学校
|
中学校 |
上白根北中学校
|
| 設備・条件 |
食器洗い乾燥機 浴室乾燥機 温水洗浄便座 床下収納 W.INクローゼット TVドアホン カードキーシステム プロパンガス 公営水道 排水下水 駐車場有 バルコニー 【建築確認番号:第24UDI1K建01126号】 |
| 取引態様 |
仲介 |
お問い合せ番号 |
S3212 |
この物件のお問い合わせ
この物件を見た人は
他にこんな物件を見ています